Dec
09
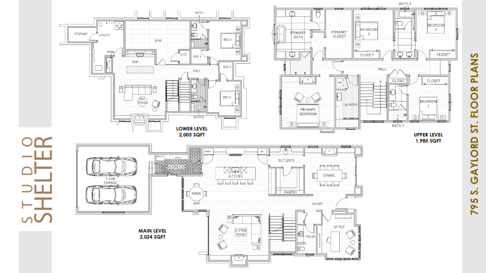
- Coming Soon
- 6,014 square feet
- 6 bedrooms, 6 bathrooms
- 2-car attached garage
- Gym
- 6,240 sf lot
Contact Bill Lyons for more information on this upcoming property:
Bill [@] devexproperties.com
720-489-4480, Ext. 20
Disclaimer: Owner reserves the right to modify plans, exterior designs, square footage and specifications. Owner may substitute materials and brands of similar quality at any time and without notice. All features and pricing are subject to availability and may change without notice.
Back to For Sale









